Toggle navigation
首页
PSD
矢量
Sketch
海报
字体
灵感
图库
VIP专区
登录
搜索
首页
灵感
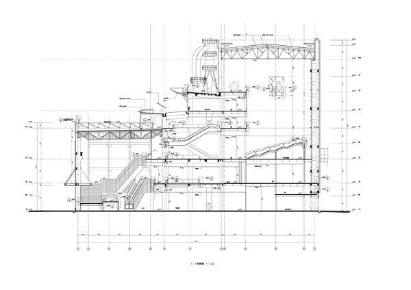
2012中国设计大展入选作品——上海当代艺术博物馆
2012中国设计大展入选作品——上海当代艺术博物馆
时尚·艺术
-
建筑与环境
48
2012-12-06
项目经历了从南市发电厂主厂房到世博会城市未来馆的转变,继而蜕变为上海当代艺术博物馆,以空间的延展性模糊了公共空间与展陈空间的界定,为日常状态的引入提供最大可能性。
打包下载图片
精品推荐
移动应用UI套件,约会应用程序UI工具包
133款正月十五2021年牛年元宵节闹元宵春节吃汤圆手绘插画PSD素材
Neumorphic板UI套件,Neumorphic板UI工具包
超过30个用于商业目的的插图。,商业插图工具包